6580 Williams Road Richmond, British Columbia V7E 1K5

3 Bedroom 2 Bathroom 1,909 ft2
Baseboard Heaters

$2,500,000

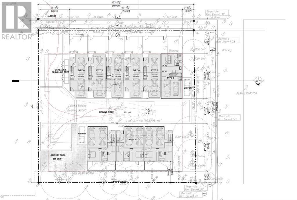
Developer's Alert!! Do not miss the chance to have the townhouse development lot in the central Richmond area right beside Steveston London Secondary School. It is assembled at 6560 and 6580 Williams Road Richmond. The total lot size is 17,690 sf. with 0.6 FSR. Rezoning Application has been submitted for 8 units of townhouses. (id:23607)

Property Details

MLS® Number R2801231
Property Type Single Family

Building

Bathroom Total 2
Bedrooms Total 3
Constructed Date 1966
Construction Style Attachment Detached
Heating Type Baseboard Heaters
Size Interior 1,909 Ft2
Type House

Parking

Other

Land

Acreage No
Size Frontage 68 Ft
Size Irregular 8976
Size Total 8976 Sqft
Size Total Text 8976 Sqft

https://www.realtor.ca/real-estate/25869592/6580-williams-road-richmond

Contact Us

Contact us for more information


Generating Captcha

Your Favourites

 

No Favourites Found

 

Jono Ceci © 2026